The Bunk
One story. Endless possibilities.
The Bunk is the ultimate flexible space — a one-story tiny home that adapts to your lifestyle. Whether it’s a guest suite, rental unit, or minimalist retreat, The Bunk combines practical design, energy efficiency, and affordability.
Starting at just $25,000.
Explore The Bunk Models
-
Starting at $25,000
8' ceiling height
Single story, no loft
All-electric system
9000 BTU mini split (AC/Heat) with remote (optional add-on)
Waterproof vinyl flooring (optional add-on)
4 LED lights and ceiling fixtures
4 operable windows with screens
Kitchen with single sink and butcherblock countertop
36" shower, full flushing toilet, exhaust fan
Exterior: Cedar-texture siding, durable roof, ready for sewer/septic hookup
-
Includes all base features plus:
One lofted storage/sleeping area
Added mini-split AC/heat
Enhanced waterproof flooring
Additional lighting package
Ideal for guests or small rentals — comfort and efficiency in one design.
-
Includes all base features plus:
Two upper lofts for sleeping or storage
Upgraded kitchen cabinetry
Larger bathroom layout
More natural light with additional windows
Designed for growing families or flexible use spaces.
-
Includes all base features plus:
Open single-story plan (no lofts)
Expanded living/dining area
Full-size kitchen layout
Perfect for those who want maximum openness and easy mobility.
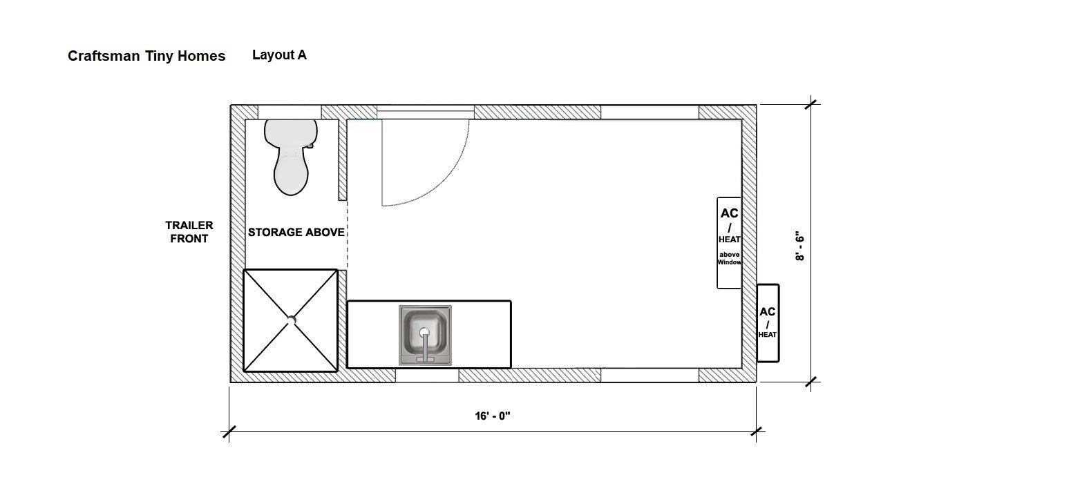
Compact Starter 8.5’ x 16’ Model – $25,000
One Story w/ No Loft
One Story w/ No Loft
One Story w/ No Loft
One Story w/ No Loft
One Story w/ No Loft
One Story w/ No Loft
One Story w/ No Loft
Compact Starter 8.5 x 16' Model $25,000
Blue tiny house on wheels with a small blue staircase, white door with glass panes, and a window, set outdoors among trees.
A blue tiny house on wheels with white trim, two windows, a door with window panes, and a small flower box, set in a wooded area under the trees.
Empty room with three windows, dark wood flooring, beige walls with vertical paneling, ceiling fan with light, small kitchenette with sink and two-burner stove, and wall air conditioning unit.
Interior of a small room with white paneled walls and ceiling, wooden flooring, two windows showing trees outside, a ceiling fan with light, a mounted air conditioning unit, a countertop with a sink, and a portable stovetop.
Empty sunroom with three windows, natural light, dark wood floor, beige paneled walls, white trim, and an air conditioning unit above the center window.
A small, narrow kitchen with dark wood flooring, white paneled walls and ceiling, a ceiling fan, a small window, a sink, and a sliding barn door leading to a bathroom.
Kitchen with wooden cabinets, stainless steel sink, and window above the sink, with a small portable cooktop on the countertop.
Small kitchen area with a window, sink, electric cooktop, and tile backsplash.
8.5’ x 20’ – Single Loft Option Starting at $29,900
Interior of a small building with a door, a sliding barn door, and a bathroom with a toilet and small sink.
A sliding barn door mounted on a rail system, partially open, in a home interior with white walls and a wood countertop.
Small bathroom with a window, shower with curtain, wall-mounted mirror, and small sink with a black heating or drying device attached to the wall nearby.
Small bathroom with walk-in shower, striped shower curtain, wall-mounted mirror, small wall-mounted sink with a hand soap dispenser, and a suction-cup storage corner in the shower.
8.5’ x 24’ – Dual Loft Option Starting at $44,400
Floor plan of a tiny home layout with a bedroom, kitchen area, and bathroom. The layout includes a shower, toilet, stove, sink, refrigerator, and a couch area.
Empty white walk-in shower with multiple built-in shelves and a metal drain on the floor, surrounded by white walls and ceiling, in a home bathroom.
Small kitchen with wooden cabinets, stainless steel refrigerator, small sink, window above the sink, and a wooden ceiling.
Light green tiny house on wheels with white trim, two windows, a door with small steps, situated among trees with a dirt ground.
Empty white shower stall with built-in shelves and a showerhead, located in a bathroom with wood-paneled ceiling and white paneled walls.
A small kitchen with a wooden countertop, a stainless steel sink, a window with green foliage outside, a stainless steel refrigerator, and a wall panel with an electrical panel.
Small beige shed with a staircase leading to a door, situated on uneven ground, with siding and a light fixture outside.
A small, light green mobile home with white trim on a dirt lot, supported on blocks and tires, surrounded by trees, with a window and a door with small wooden steps in front.
Empty white shower stall with built-in shelves and a showerhead on the left side in a bathroom.
Ready to Customize Your Bunk?
Every Bunk model can be tailored to your lifestyle — from finishes to floor plans. Let’s design a home that fits your space, budget, and goals.
Prices shown are starting rates. Final cost varies based on customization, finishes, and delivery location.
One Story w/ No Loft
One Story w/ No Loft
One Story w/ No Loft
One Story w/ No Loft
One Story w/ No Loft
One Story w/ No Loft
One Story w/ No Loft
One Story w/ No Loft
Compact Starter 8.5 x 16' Model $25,000