A tiny house on wheels with dark gray vertical siding, white trim, and a red door, set on concrete blocks, surrounded by trees with a clear blue sky above.
A tiny black house on wheels under construction in a wooded outdoor area, with several windows and an outdoor air conditioning unit.

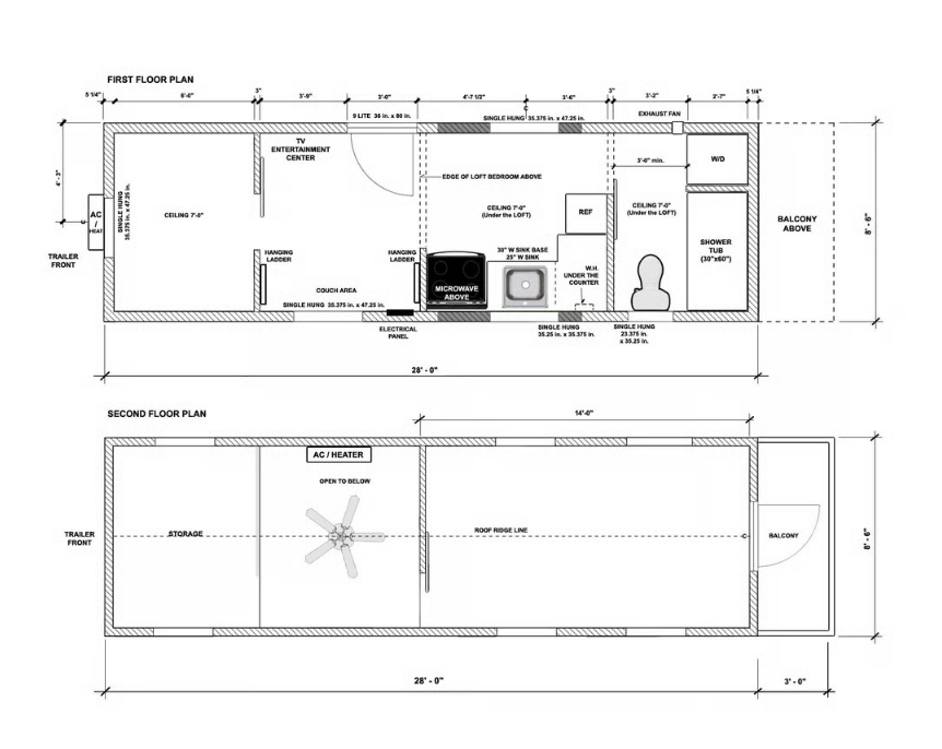
The Lookout

Smart Design. Stunning Style. Built to Last.

The Alpine combines the charm of a modern A-frame with a sleek slant roof — delivering the comfort and function of a full-sized home in a compact, efficient design. Perfect for first-time buyers, downsizers, or anyone ready to own a home without the burden of a mortgage.

Starting at just $42,700 — fully built, move-in ready.
That’s less than most down payments on a traditional home.

Why Choose the Lookout

Starting at $43,700 for the 16′ version, The Lookout upgrades your tiny home game with a balcony and extra loft space. With a modern silhouette and elevated living features, it offers more “ooomph” in a tiny format — a perfect choice when you want both design flair and functional flexibility.

Affordable Ownership: Starting at $43,700 — fully paid, move-in ready.

Balcony feature adds outdoor living and design impact

Loft and lower-level bedroom layout for versatile space use

Scalable lengths from 16′ to 40′ models (prices escalate accordingly)

Modern finishes and full bathroom, kitchen, wiring as standard

Designed for move-in readiness with flexible living options

    • Spacious layout with vaulted ceilings for added vertical space

    • Loft suitable for sleeping or additional storage

    • Textured drywall and waterproof vinyl flooring

    • LED lighting throughout

    • Optional mini-split AC/heating and tankless water heater

    • Single stainless-steel sink with modern fixture

    • Butcher-block countertop with base cabinetry

    • Electrical and plumbing ready for mini-fridge, cooktop, or combo unit

    • Efficient, linear layout for easy movement and storage

    • 36″ shower with modern fixtures

    • Full-size flushing toilet

    • Exhaust fan for ventilation

    • Ready for connection to standard or septic systems

    • Durable steel construction engineered for long-term use

    • Balcony feature for outdoor enjoyment

    • Exterior door with lighting fixture

    • Plug-in electrical service and garden-hose-style water hookup

    • Available in multiple lengths for expanded living

First and second floor plans of a tiny home, detailing layout with kitchen, bathroom, bedroom, living area, and balcony.